• Home
  • Projects
  • About
  • Contact
More
Menu

PROJECTS

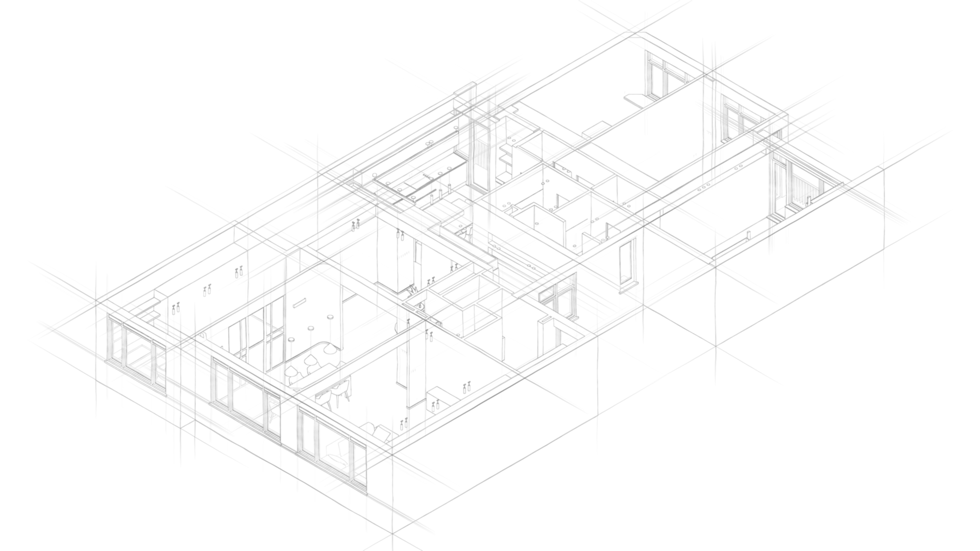
MAS

Apartment Renovation

LHP

Townhouse Garden

IAM

Interior

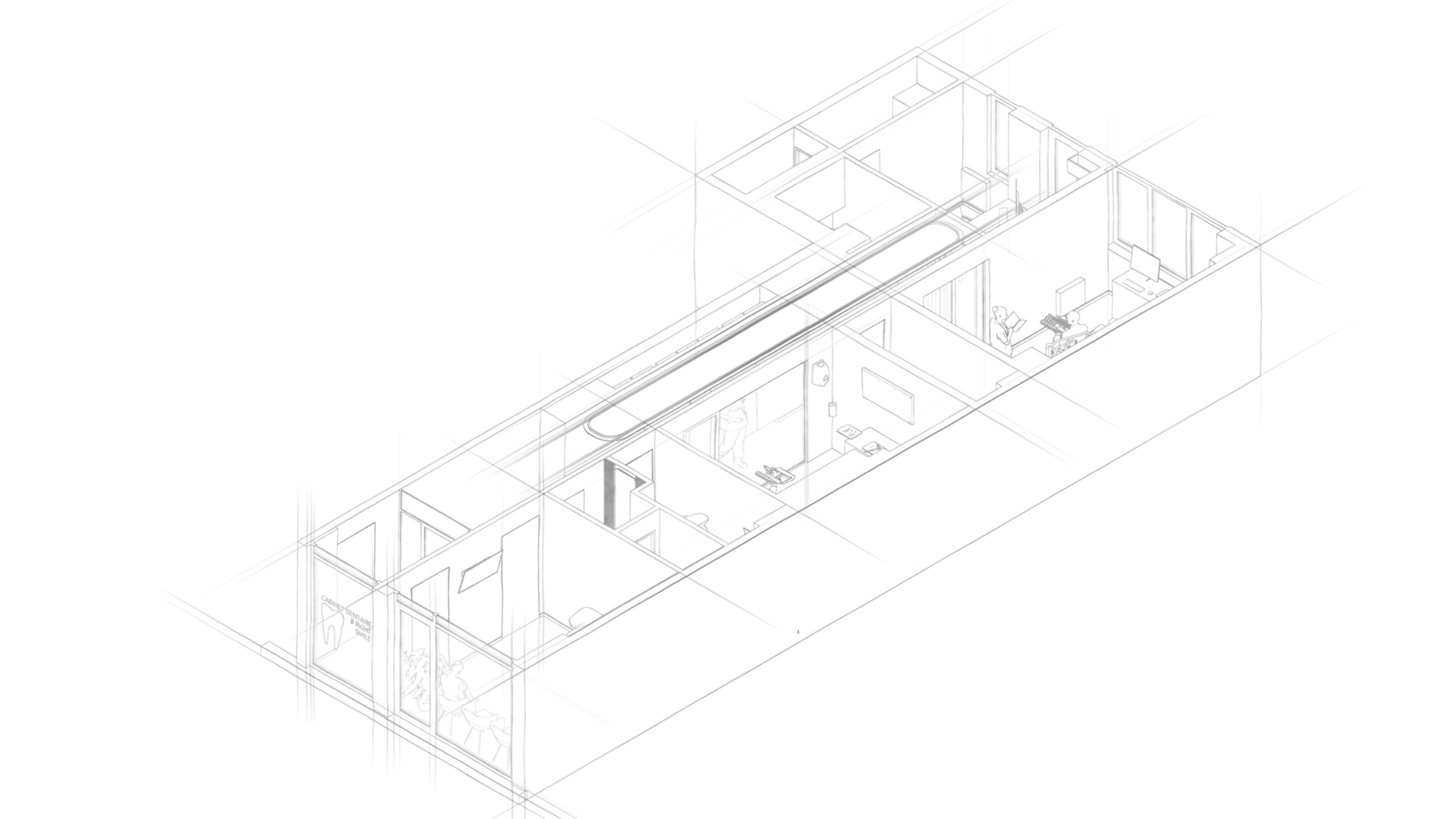
TPB

Dental Practice

MKB

Bath House

TPV

Dental Practice

RLB

Duplex Renovation

© 2025 SML architectuur
Cookies
Languages
  • English
  • Nederlands
We use cookies to enable the proper functioning and security of our website, and to offer you the best possible user experience.

Advanced settings

You can customize your cookie preferences here. Enable or disable the following categories and save your selection.

The essential cookies are essential for the safe and correct operation of our website and the registration process.
Functional cookies remember your preferences for our website and enable its customization.
Performance cookies monitor the performance of our website.
Marketing cookies allow us to measure and analyze the performance of our website.